Dienstleistungen
elektrotechnische Lösungen - digital und zuverlässig
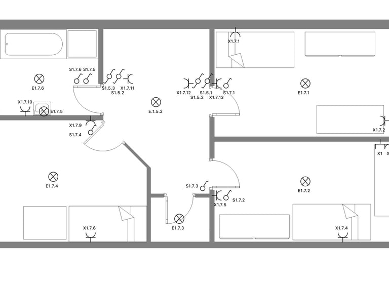
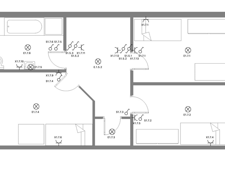
Elektroinstallationsplan


Erhalten Sie einen genauen Überblick über Ihre Elektroanlage. Ideal zur Dokumentation oder Renovierung.
➡️ Sicher. Übersichtlich. Verständlich.


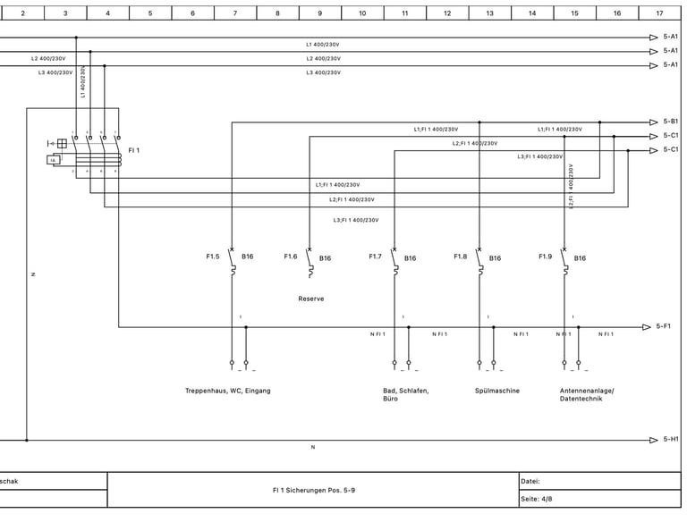
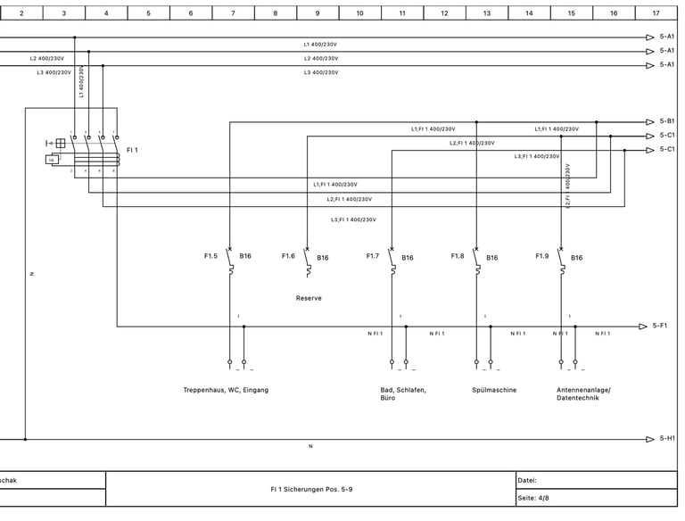
Stromlaufplan
Wir erstellen Ihren Stromlaufplan nach Norm – alle Stromkreise und Verbindungen auf einen Blick.
➡️ Perfekt für Wartung und Erweiterungen.
Individuelle Elektroplanung für Ihr Zuhause – verständlich erklärt, effizient umgesetzt.
➡️ Jetzt anfragen und Klarheit schaffen.
Planung & Beratung
Häufig gestellte Fragen
Was brauche ich, um einen Elektroplan erstellen zu lassen?
Sie benötigen nur einen Grundriss oder eine einfache Skizze Ihrer Räume. Wir erklären Ihnen genau, welche Informationen wir zusätzlich brauchen.
Muss ich vor Ort sein oder Besuch bekommen?
Nein – die Planung kann vollständig remote erfolgen. Sie schicken uns die nötigen Unterlagen digital zu.
Was kostet die Erstellung eines Elektroplans?
Der Preis richtet sich nach Umfang und Komplexität der Anlage. So zahlen Sie auch nur das, was dokumentiert wird. Kleine Wohnungen starten ab ca. 200 €, größere Projekte werden individuell kalkuliert.
Welche Vorteile habe ich durch eine Dokumentation meiner Anlage?
Sie schaffen Klarheit, sparen Zeit bei Wartung oder Umbau und erhöhen den Wert Ihrer Immobilie.
Wie kann ich anfragen?
Ganz einfach: Über das Kontaktformular auf der Website – wir melden uns innerhalb kurzer Zeit bei Ihnen.
Kontakt
Wir freuen uns auf Ihre Anfrage.
Telefon
info@elektroplanung-lischak.de
+49 123 4567890
© 2025. All rights reserved.
